Одноэтажный дом DM-01

ГОТОВЫЙ ДОМ
8300000,00
Современный одноэтажный загородный дом площадью 130 м2, это уютное пространство, подходящее для комфортного проживания и отдыха от городской суеты.
Комплектация
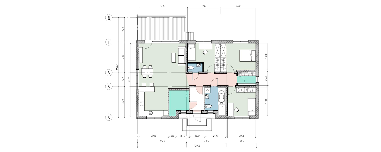
Планировка дома
Внутренняя отделка
Как проходит строительство

Комплектация

Одноэтажный дом площадью 130 кв.м. с 3 спальнями, одна из которых мастер-спальня, просторной кухней-гостиной, санузлом и котельным помещением.
Комплектация дома включает:

  • Свайно-ростверковый фундамент
  • Стены из газоблока Твинблок
  • Утепление стен минеральной ватой
  • Кровля - металлочерепица
  • Водосточная система
  • Снегозадержатели
  • Утепление кровли минеральной ватой
  • Отмостка по периметру дома
  • Энергоэффективное остекление конструкциями Veka
  • Автономная канализация
  • Входная дверь с терморазрывом
  • Отделка входной группы планкеном

Планировка дома

Внутренняя отделка

Одноэтажный дом площадью 80 кв.м. с 2 спальнями, гостиной, просторной кухней и раздельным санузлом. Внутренняя отделка под чистовую включает в себя:

  • Стены - механизированная штукатурка
  • Монтаж системы отопления
  • Устройство системы водоснабжения ГВС и ХВС
  • Монтаж электропроводки
  • Установка и подключение канализации

Возможна отделка под ключ и под тапочки.

Как проходит строительство

Можно написать кратко как проходит строительство, например. Написать, что строите на участках собственника, за 4-6 месяцев и тд.